Olive Crest, a non-profit organization which offers programs to prevent child abuse, is looking to get into development in Orange County.
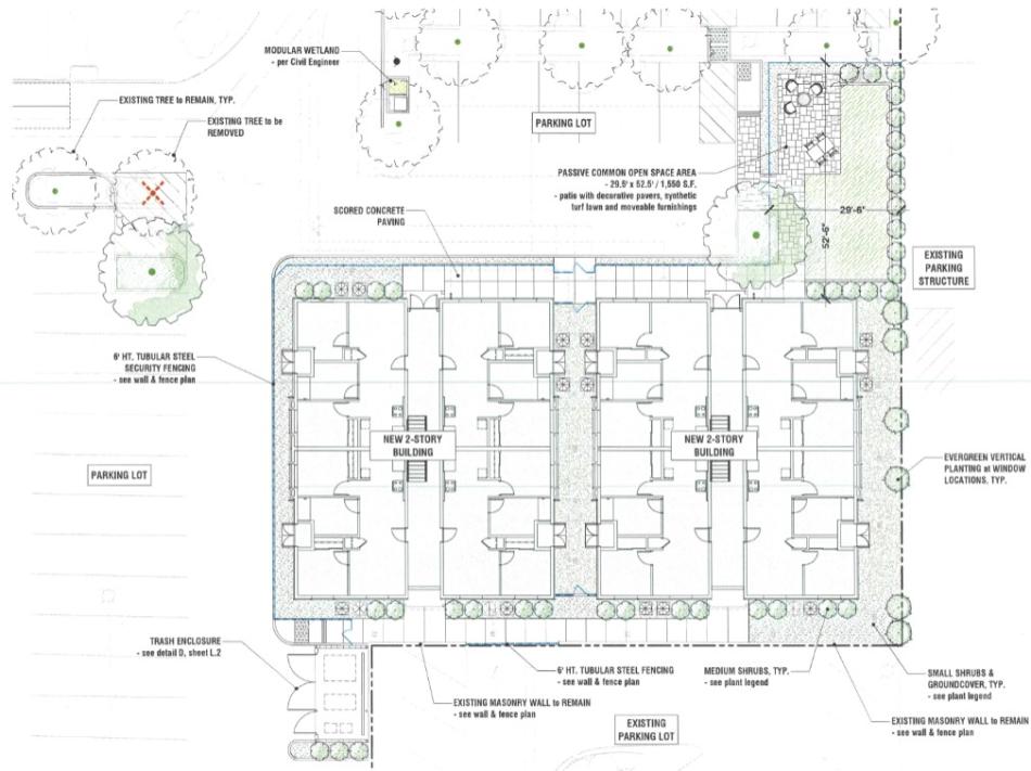
According to an item recently considered by the Santa Ana Planning Commission, Olive Crest is looking to build a 15-unit apartment building behind its headquarters - a two-story office building located at 2130 E. 4th Street. The proposed project calls for the construction of a cluster of two-story buildings featuring two-bedroom apartments ranging between 761 and 785 square feet in size, as well as common features such as a community room and a laundry area.
The project would utilize density bonus incentives, not to increase the total amount of housing planned, but to secure reductions in required on-site open space and parking. In exchange, three of the apartments are to be restricted to households earning between 30 and 50 percent of the area median income level.
BSB Design is the architect attached to the project.
The project site is located one block to the north of 1st Street in Santa Ana, which has recently seen the developed of several large multifamily residential projects. The most recent development slated for the corridor is an 86-unit townhome complex which would replace a 1980s office building.
Twitter / Facebook / LinkedIn / Threads / Instagram / Bluesky
- Santa Ana (Urbanize LA)

