An environmental study published by the City of Pomona spotlights plans for a new housing complex just east of the 57 Freeway.
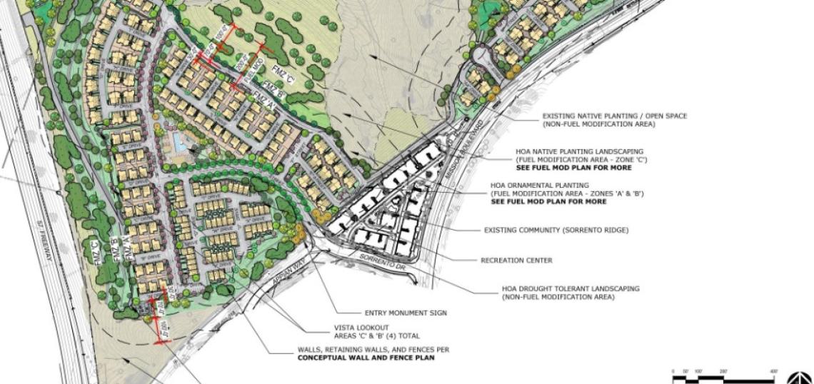
The Elephant Hill project, named for the geographic feature upon which it would be located, is proposed by Trumark Homes. Plans call for the construction of 228 total homes - including 68 single-family homes and 160 apartments - on the western side of Elephant Hill. The nearly 52-acre development would also include a private recreation center, and require the construction of new roads and other modifications to the hillside. The remaining 69 acres of Elephant Hill would be left undeveloped.
Per the environmental report, Trumark intends to take advantage of the hillside topography by creating four public viewpoint areas within the western portion of the project site, as well as nearly 10 acres of natural open space to be retained within the development site.
Plans shown on a project website show the project as consisting of two- and three-story structures in a variety of architectural styles. Architerra is serving as the project's landscape architect, while Bassenian Lagoni is designing the homes.
Pending environmental clearances and approval of construction, work on the Elephant Hill project is expected to kick off with grading in August 2026. Construction would be completed by October 2031.
The project should not be confused with L.A. County's other Elephant Hill, which is an open space in the El Sereno neighborhood.
Follow us on social media:
Twitter / Facebook / LinkedIn / Threads / Instagram / Bluesky
- Pomona (Urbanize LA)