Westwood residents in search of a convenient oil change may soon need to look elsewhere.
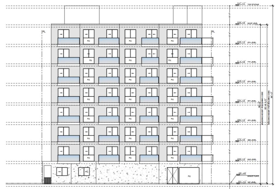
Earlier this month, local investor David Lary of Santa Monica Westwood Group, LLC filed an application with the Los Angeles Department of City Planning seeking approvals for a new multifamily residential building at 11001 W. Santa Monica Boulevard. The project, which would replace a Jiffy Lube location, calls for the construction of a new eight-story building featuring 58 studio, one-, and three-bedroom apartments above parking for 27 vehicles.
Requested approvals include Opportunity Corridor incentives through the Citywide Housing Incentive Program, allowing for a larger building than permitted by base zoning rules. In exchange, eight of the new apartments would be set aside for rent as affordable housing at the extremely low-income level.
Carpira Design Group Company is designing the project, according to plans included with the filing. A floor plan shows the building would include a rooftop amenity deck.
The project site sits across Santa Monica Boulevard from a recently-built permanent supportive housing complex.
Follow us on social media:
Twitter / Facebook / LinkedIn / Threads / Instagram / Bluesky
- Westwood (Urbanize LA)

