In a letter issued earlier this month, the City of Los Angeles approved plans from the Walter J. Company and Metro to build a large mixed-use development above the Westlake/MacArthur Park subway station.
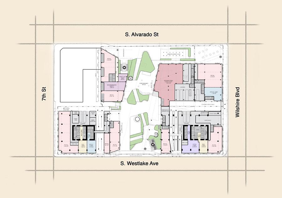
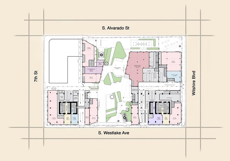
Centro Westlake, which would encompass a nearly 150,000-square-foot site bounded by Wilshire Boulevard, Alvarado Street, Westlake Avenue, and 7th Street, calls for the construction of a two-tower complex including:
- 668 studio, one-, and two-bedroom homes (including 234 for moderate-, low-, very low-, and extremely low-income households);
- a 300-room hotel;
- 105,000 square feet of offices;
- 10,000 square feet of medical offices;
- 56,708 square feet of retail space; and
- parking for 968 vehicles.
The Walter J. Company previously announced that 20 percent of the project's retail space would be reserved for Westlake-based businesses.
SOM is designing the project, which would include buildings of 55 and 39 stories, rising between 450 and 600 feet in height. The site would be broken up with a large, central open space cutting east-to-west through the site. Plans call for activating the space with commercial uses, a mobility hub, and space for local vendors and events.
Centro Westlake is not the Walter J. Company's first attempt to build tall in this area. Nearly a decade ago, the firm secured approvals for an as-yet unbuilt high-rise building one block to the east along Wilshire Boulevard.
Follow us on social media:
Twitter / Facebook / LinkedIn / Threads / Instagram / Bluesky
- Centro Westlake (Urbanize LA)


