A single-family home in Mid-City is set to give way to a small lot subdivision, per an application submitted earlier this year to the Los Angeles Department of City Planning.
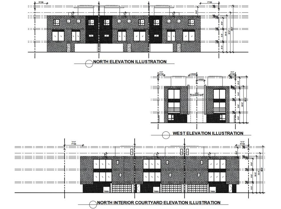
The proposed project, which would rise from a site at 2219 Ridgeley Drive, comes from applicant Shawn Visutsiri. Plans call for subdividing the approximately 9,500-square-foot property to allow for the construction of six single-family homes.
Plans show a series of three-story structure arranged in two rows. Each would feature three bedrooms above a two-car garage.
Gibbs Architects is designing the proposed development.
Mid-City has seen applications for several similar small lot projects in recent years, including plans initiated earlier this year for a project along Cochran Avenue.
Follow us on social media:
Twitter / Facebook / LinkedIn / Threads / Instagram / Bluesky
- Mid-City (Urbanize LA)

