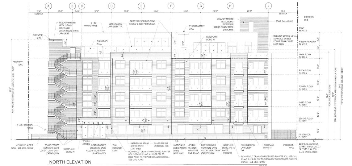
11246-11250 Otsego Street

Under Construction Last updated 12/19/2025
Project Uses Apartments, Parking
# of Apartments 70
Floors (Above Ground) 6
Floors (Below Ground) 2
Podium Yes
Construction Type Type III (do not use)

Companies

Architect Sam Aslanian
Developer Sam Aslanian
You have X free articles remaining this month.
Subscribe today!
Subscribe