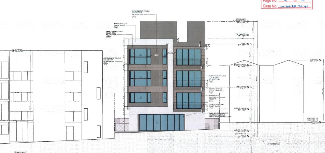
146 N. Berendo Street

Approved Last updated 12/19/2025
Project Uses Apartments, Parking
# of Apartments 14
Floors (Above Ground) 4
Podium No
Construction Type Type III (do not use)

Companies

Developer Gold Capital Group
You have X free articles remaining this month.
Subscribe today!
Subscribe