Skip to main content
Los Angeles
Los Angeles
Neighborhoods
Downtown
Hollywood
Regional
Koreatown
Santa Monica
Westlake
Long Beach
Pasadena
Culver City
West Hollywood
Orange County
East Hollywood
View All→
Urbanize Network
National
Seattle
Atlanta
Austin
Chicago
Dallas
Washington DC
Detroit
Los Angeles
Miami
New York
Toronto
San Francisco
Projects
Advertise
Sign In
My Account
Sign Out
Subscribe
Search
Advertisement
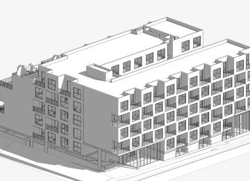
2136-2140 Westwood Boulevard
Los Angeles
West Los Angeles
Westwood Boulevard Development Faces Appeal
Five-story, 77-story apartment complex would replace a small commercial building.
January 23, 2019 by Steven Sharp
8
Advertisement
Stay informed.
All our breaking news, straight to your inbox.
Subscribing
Atlanta
Austin
Chicago
Dallas
Detroit
Los Angeles
Miami
NYC
San Francisco
Seattle
Toronto
Washington DC
Don't show me this again
You have
X
free articles remaining this month.
Subscribe today!
Subscribe