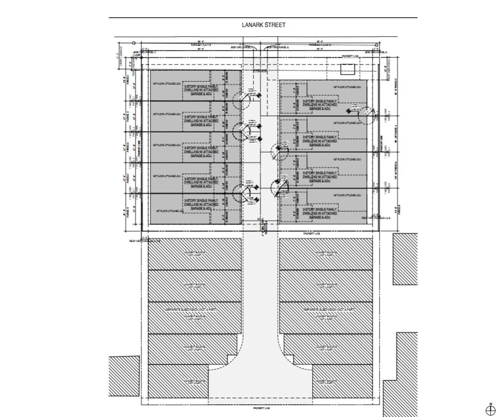
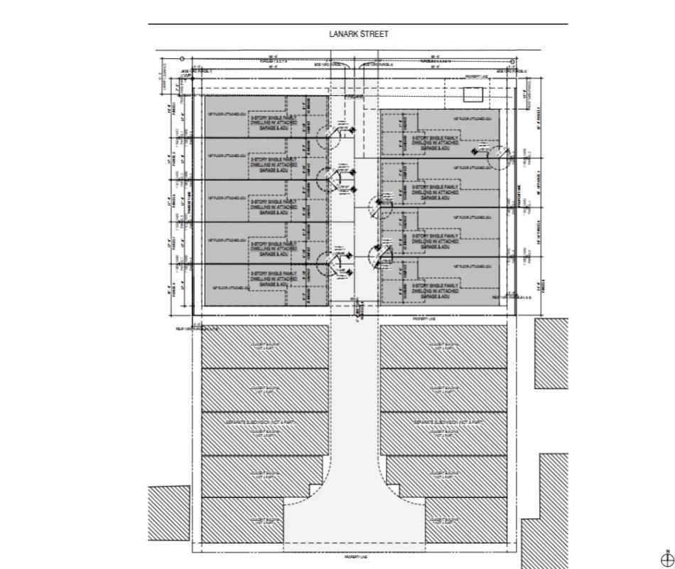
A 1950s single-family home in Reseda is slated to give way to development through new projects filed under SB 1123.
The property, located at 18838 W. Lanark Street, consists of two lots, each under separate applications. The front lot, which faces Lanark Street, is to be subdivided into nine parcels, each of which would include a single-family home with an accessory dwelling units.
JZA Architecture is designing the project, which is shown in as contemporary three-story homes, each featuring three bedrooms and a two-car garage. The homes are arranged in two rows around a common driveway.
The rear lot, which does not front the street, is to be subdivided to allow the construction of ten additional homes, according to the second filing.
City records list Brian Bouzaglou of 18838 Lanark, LLC as the applicant for both projects.
Follow us on social media:
Twitter / Facebook / LinkedIn / Threads / Instagram / Bluesky
- Reseda (Urbanize LA)

