Skip to main content
Los Angeles
Los Angeles
Neighborhoods
Downtown
Hollywood
Regional
Koreatown
Santa Monica
Westlake
Long Beach
Pasadena
Culver City
West Hollywood
Orange County
East Hollywood
View All→
Urbanize Network
National
Seattle
Atlanta
Austin
Chicago
Dallas
Washington DC
Detroit
Los Angeles
Miami
New York
Toronto
San Francisco
Projects
Advertise
Sign In
My Account
Sign Out
Subscribe
Search
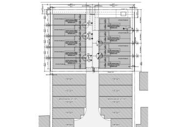
18838 W. Lanark Street
Proposed
Last updated 4/8/2026
Project Uses
Townhomes, Parking
Floors (Above Ground)
3
Podium
No
Construction Type
Type 3, 4 & 5
Companies
Developer
Brian Bouzaglou
Architect
JZA Architecture
Consultant
Rand Paster Nelson LLP
Engineer
Forma Engineering Inc.
Add your company
Updates
Image
April 26, 2026
Townhomes in the works at 18838 W. Lanark St. in Reseda
New housing plus ADUs
Media
Stay informed.
All our breaking news, straight to your inbox.
Subscribing
Atlanta
Austin
Chicago
Dallas
Detroit
Los Angeles
Miami
NYC
San Francisco
Seattle
Toronto
Washington DC
Don't show me this again
You have
X
free articles remaining this month.
Subscribe today!
Subscribe