Image
December 9, 2025
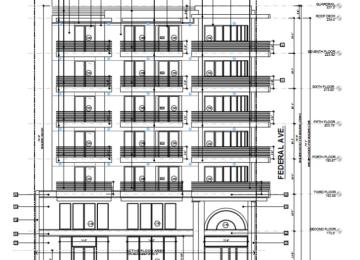
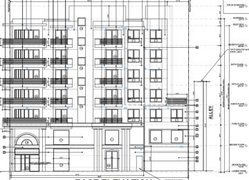
New plan emerges for mixed-use building at 11601 W. Pico Blvd. in Sawtelle
More height, more housing
| Project Uses | Apartments, Retail, Parking |
| # of Apartments | 38 |
| Floors (Above Ground) | 7 |
| Podium | No |
| Construction Type | Type 3, 4 & 5 |
| Developer |
Reza Ghasem
Paddock Group LLC |
| Architect | HRD Arch Inc. |
| Engineer |
DHS & Associates Inc.
AGI Geotechnical A&N Design Group Inc. AK Structural Engineering Inc. |
| Consultant | M&G Surveying |