17719 W. Kingsbury Street

Proposed Last updated 12/3/2025
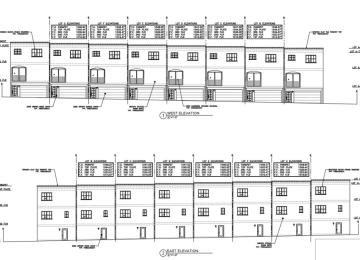
Project Uses Condos, Townhomes, Parking
Floors (Above Ground) 3
Podium No
Construction Type Single Family Home

Companies

Developer Kingsbury Enterprises LLC
Architect Pagana
You have X free articles remaining this month.
Subscribe today!
Subscribe