A 1940s single-family home in Granada Hills is slated to give way to a small lot subdivision, per a new application to the Los Angeles Department of City Planning.
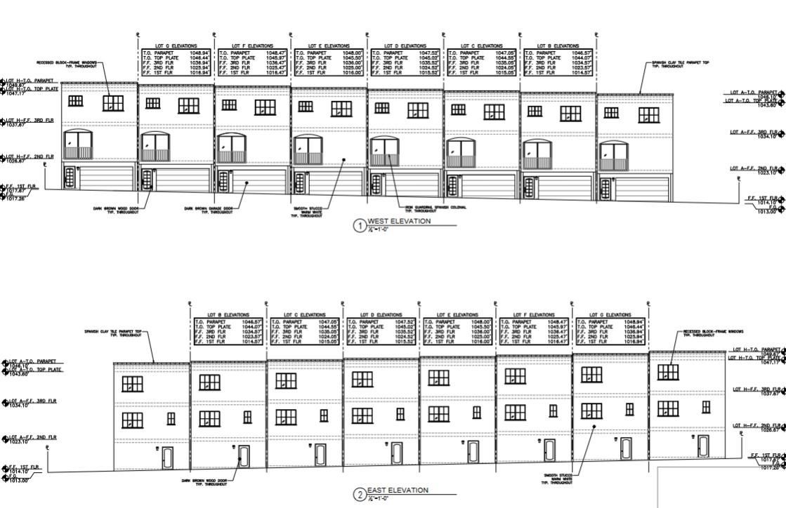
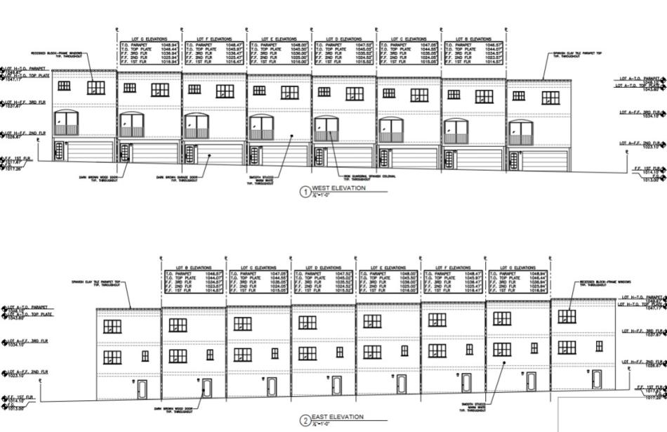
The project site, located at 17719 W. Kingsbury Street, sits just southwest of the intersection of Chatsworth Street and White Oak Avenue. Plans call for subdividing the lot to permit the construction of eight single-family dwellings.
Designed by Pagana, the homes are envisioned as a row of three-story structures, each featuring three bedrooms, two bathrooms, and a two-car garage at ground level.
City records list the project applicant as Kingsbury Enterprises, LLC.
The project is taking advantage of SB 684, recently-adopted state legislation which streamlines the approval of small lot homes.
The project site is located a few blocks to the west of a mixed-use apartment complex recently completed at Chatsworth Street's intersection with Encino Avenue.
Follow us on social media:
Twitter / Facebook / LinkedIn / Threads / Instagram / Bluesky
- Granada Hills (Urbanize LA)
